Pest megye, Kerepes

 

Ingatlan adatai

Irányár: 82 000 000 Ft
Típus: ház
Kategória: eladó
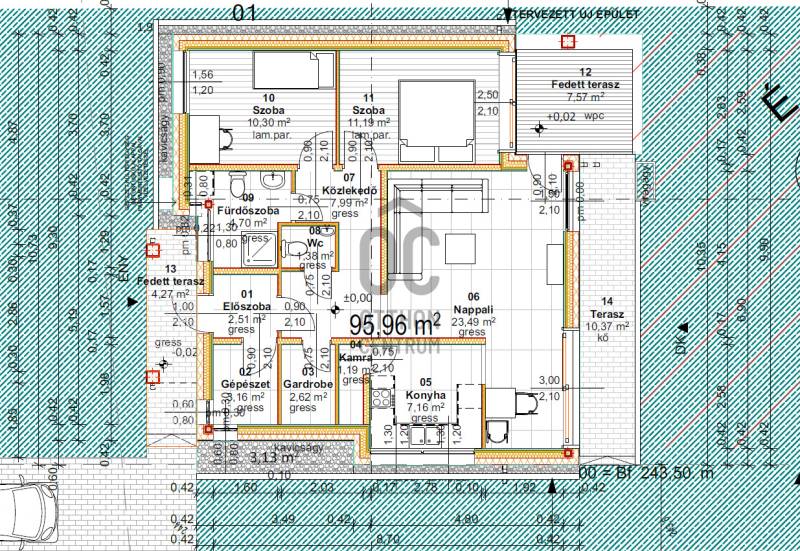
Alapterület: 96 m2
Fűtés: -
Állapota: új
Szobák száma: 3
Építés éve: 2025
Szintek száma: -

Részletes leírás

Jelenleg szerkezetkész állapotban lévő, de kulcsrakészen eladó egy SIP-paneles technológiával épült egyszintes családi ház.Ön választhatja ki a burkolatokat, igényeinek megfelelően.Keressen, a részletekért.

További adatok

Telekterület: 375 m2
Kert mérete: 375 m2
Erkély mérete: 21 m2
Felszereltség: -
Parkolás: -
Kilátás: -
Egyéb extrák:  
-
hirdetés

Hirdető adatai

Hirdető neve: Otthon Centrum
Kapcsolattartó: Právicz Anna
Hirdető telefonszáma: +36 70 461 9226
Honlap: -


Nyomtatóbarát változata            Ingatlan hirdetés ajánlása


Copyright © Euro Ingatlanbank