Pest megye, Monor

 

Ingatlan adatai

Irányár: 83 800 000 Ft
Típus: ház
Kategória: eladó
Alapterület: 76 m2
Fűtés: -
Állapota: -
Szobák száma: 1+3
Építés éve: 2026
Szintek száma: -

Részletes leírás

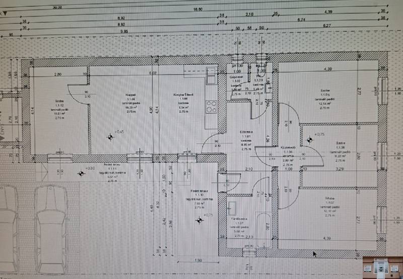
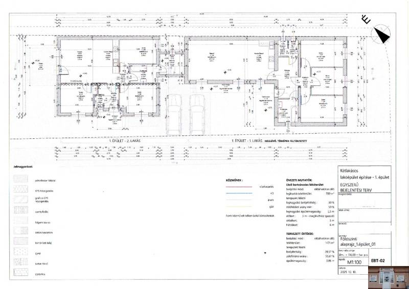
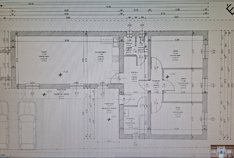
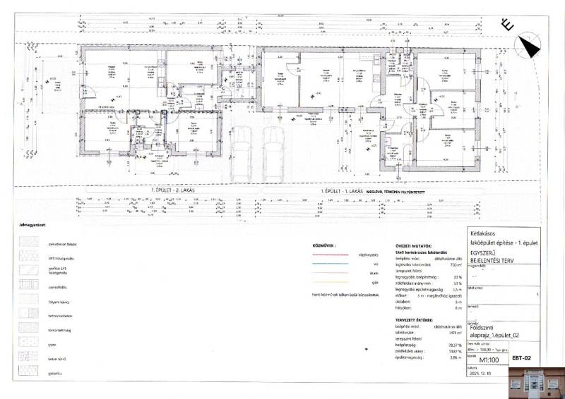
HASZNÁLJA KI A CSOK+ KAMATTÁMOGATOTT HITEL ELŐNYEIT, A 4% ILLETÉKKEDVEZMÉNYT, VALAMINT A 3%-OS OTTHON START HITELT!!!!!!10 % FOGLALÓVAL, + 10 % VÉTELÁR ELŐLEGGEL LEKÖTHETŐ!!!Monor kertvárosában 2×2 társasházi lakás épül, saját telekkel, közös kocsibeállóval melyek I. ütemének FOGLALÁSA MÁR MEGKEZDŐDÖTT!!!Az 1. lakás lakóterülete 92,35 m2, melyben előszoba (8,95 m2), nappali (24,02 m2), konyha-étkező (12,82 m2), közlekedő (2,80 m2), 1. szoba (12,14 m2), 2. szoba (9,22 m2), 3. szoba (12,17), fürdőszoba (5,08 m2), WC (3,49 m2), és gépészet (1,66 m2) található, valamint egy fedett terasz (7,69 m2) van a bejárat előtt.Igény szerint a nappaliból egy 4. szoba (11,61 m2) is kialakítható, így a nappali (18,29 m2), a konyha-étkező (6,54 m2) lesz.Az ingatlanhoz kb. 100 m2 saját telek tartozik.Fűtés: hőszivattyúval („H” tarifa), hőleadás padlófűtéssel, valamint inverteres klímával.Közművek közül vezetékes víz, villany („H” tarifával), és csatorna bevezetésre kerül.Az ingatlan a ’90-es években épült téglából, ezt újítják fel teljes egészében: új szigetelést, nyílászárókat, fűtésrendszert, és a vevő által kiválasztott burkolatot kap, valamint a belső tereket is átalakítják a mai kor elvárásainak megfelelően.ÁRA: 90.000.000.- FtEhhez az ingatlanhoz csatlakozik az új építésű 2. lakás, mellyel csak a tárolóval ér össze.A 2. lakás lakóterülete 76,18 m2, melyben előszoba (4,38 m2), nappali (18,52 m2), konyha-étkező (8,48 m2), közlekedő (1,10 m2), 1. szoba (11,05 m2), 2. szoba (10,30 m2), 3. szoba (10,64), fürdőszoba (5,13 m2), WC (1,17 m2), és tároló (5,46 m2) található, valamint egy előlépcső (4,16 m2), és egy terasz (11,70 m2) kapcsolódik a nappalihoz.Az ingatlanhoz kb. 150 m2 saját telek tartozik.Fűtés: hőszivattyúval („H” tarifa), hőleadás padlófűtéssel, valamint inverteres klímával.Közművek közül a villany („H” tarifával), vezetékes víz kerül bevezetésre, a szennyvízelvezetés zárt rendszerű emésztőbe történik.ÁRA: 83.800.000.- FtElektromos kapu!Burkolatok 8.000.- Ft/m2 árig választhatóak.Átadás: 2026. IV. negyedévAZ ELKÉSZÜLT INGATLANOKRÓL FELTÖLTÖTT KÉPEK A VÁLLALKOZÓ ÁLTAL ÉPÍTETT INGATLANOK REFERENCIAMUNKÁI!!!DÍJMENTES HITELÜGYINTÉZÉS IRODÁNKBAN!!!OTTHON START HITEL, CSOK+, BABAVÁRÓ KÖLCSÖN, KAMATTÁMOGATOTT LAKÁSHITELEK, ….2003 ÓTA AZ ÖNÖK BIZALMÁBAN!

További adatok

Telekterület: 150 m2
Kert mérete: 150 m2
Erkély mérete: 12 m2
Felszereltség: -
Parkolás: -
Kilátás: -
Egyéb extrák:  
-
hirdetés

Hirdető adatai

Hirdető neve: Judit Ingatlairoda Kft.
Kapcsolattartó: Moldván Judit
Hirdető telefonszáma: 06-30-625-5266
Honlap: -


Nyomtatóbarát változata            Ingatlan hirdetés ajánlása


Copyright © Euro Ingatlanbank