Pest megye, Bugyi

 

Ingatlan adatai

Irányár: 250 000 000 Ft
Típus: egyéb ingatlan
Kategória: eladó
Alapterület: 240 m2
Fűtés: -
Állapota: -
Szobák száma: -
Építés éve: 1960
Szintek száma: -

Részletes leírás

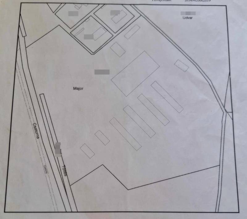
Bugyitól pár percre eladó, több lehetőségből álló major. 6 Hektár területen található, 3 szinten lakóépületnek kialakitható tégla építésű ház, ami szintenként 240 nm. Az épületben víz, villany, zárt emésztő bevezetve. A területen több épület is megtalálható. Magtár:750 nm, Tető nélküli épület: 2100 nm, Tároló: 4 db egyenként 620 nm, Tároló: 3 db egyenként 310 nm. Ezek az épületek felújítandók. Sok lehetőséget rejt ez a Major, mezőgazdasági, állattartásra akár munkásszálló kialakítására, bármilyen tevékenységre kialakítható. Beton út vezet Bugyiról a majorig, 8 perc alatt iskola, óvoda, vásárlási lehetőség elérhető. Akár bútorozottan és a tárolókban elhelyezett rengeteg bútorral, eszközökkel együtt.Ha hirdetésem felkeltette érdeklődését, keressen az alábbi elérhetőségek egyikén.Szládik-Fekete Kitti

További adatok

Telekterület: -
Kert mérete: -
Erkély mérete: -
Felszereltség: -
Parkolás: -
Kilátás: -
Egyéb extrák:  
-
hirdetés

Hirdető adatai

Hirdető neve: Dabas Régió
Kapcsolattartó: Szládikné Kitti
Hirdető telefonszáma: 06204004034
Honlap: -


Nyomtatóbarát változata            Ingatlan hirdetés ajánlása


Copyright © Euro Ingatlanbank